SPR25 // UNDER CONSTRUCTION

De bestaande woning wordt in een nieuw en isolerend jasje gestoken van wit-grijze steenstrips en houten latwerk.
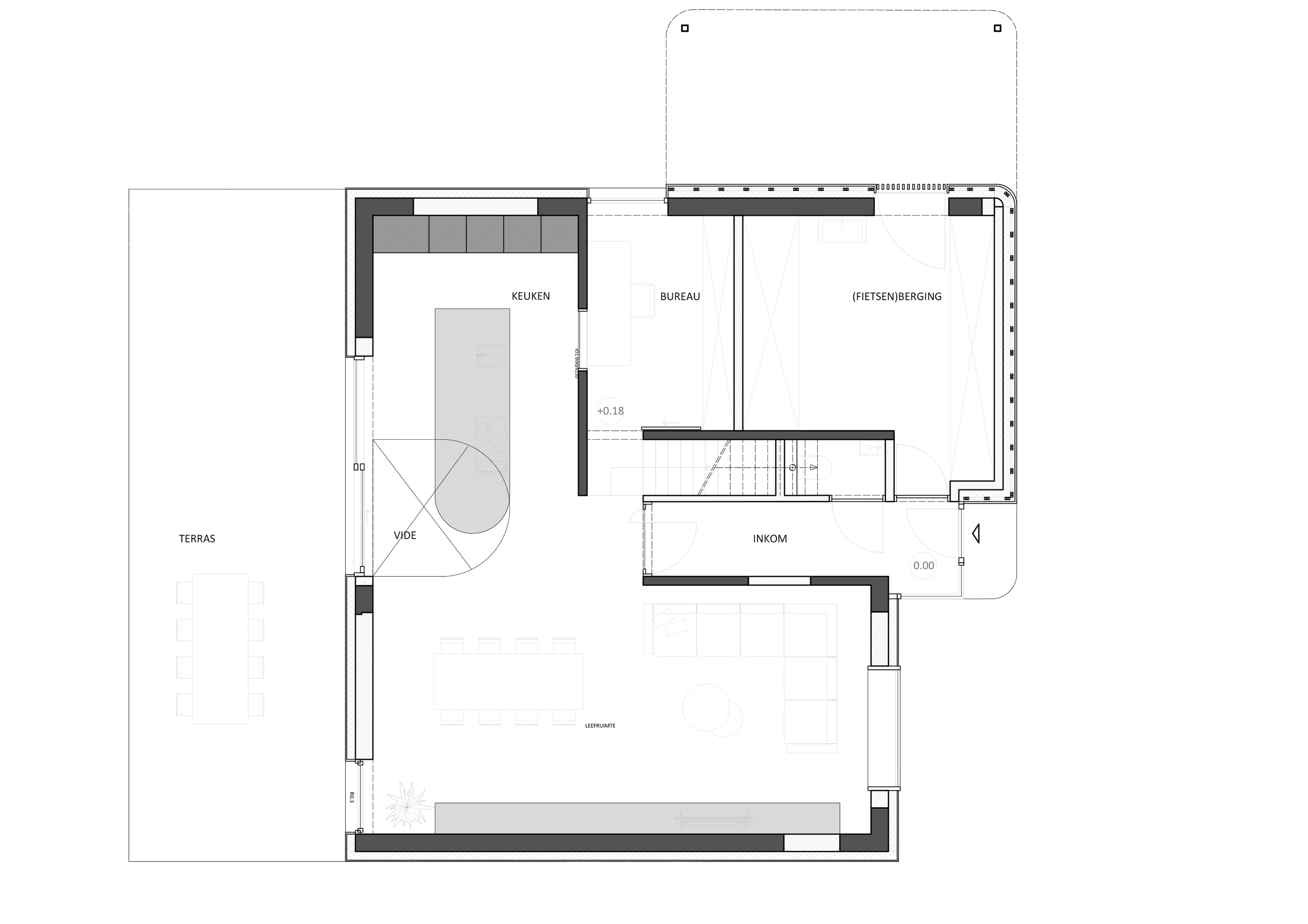
De bestaande achterbouw wordt verwijderd om terug tot het hoofdvolume, zuiver en leesbaar, te komen.
Ondanks de grotere ingrepen wordt het respect voor de bestaande toestand duidelijk. Er ontstaan leuke nieuwe doorzichten, lichten, connecties en belevingen.
Het gelijkvloers wordt bijvoorbeeld voorzien van een carport met private toegang tot een (fietsen)berging, zodat de tuin achteraan onthard kan worden.
Binnenin wordt er visueel een horizontale relatie gecreërd vanaf de voorzijde tot de tuin, waar dan een nieuwe verticale relatie tot stand komt door middel van een vide.
Op andere plaatsen wordt waar nodig de privacy bewaard door een claustraverband te voorzien voor de ramen.
Het grote houten raam in de achtergevel wordt een eye catcher, terwijl de voorgevel ritmisch en sober blijft.

Vorige
Vorige

RW

Volgende
Volgende

PBS